米皇新材
返回首页
公司简介
产品系列
新闻中心
资质荣誉
生产设备
工程案例
在线反馈
招贤纳士
联系我们
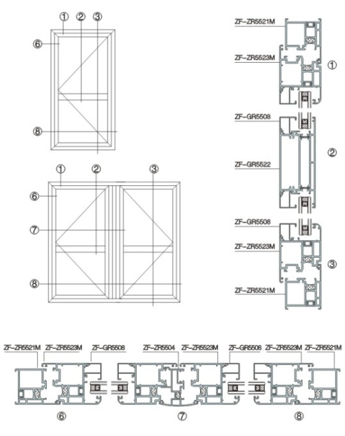
ZR55注胶节能隔热平开系列门窗型材图
首页
返回顶部
访问电脑版
技术支持:
建材网
铝道网